Search

Leave a Message

By providing your contact information to Grace Frank, your personal information will be processed in accordance with Grace Frank's Privacy Policy. By checking the box(es) below, you consent to receive communications regarding your real estate inquiries and related marketing and promotional updates in the manner selected by you. For SMS text messages, message frequency varies. Message and data rates may apply. You may opt out of receiving further communications from Grace Frank at any time. To opt out of receiving SMS text messages, reply STOP to unsubscribe.

Thank you for your message. We will be in touch with you shortly.

Home Search

Property Description

Welcome to 174 Turner Lane--where peace meets quiet and space meets opportunity. Set on 8.6 flat, usable acres, this property offers a rare blend of privacy, natural beauty, and flexibility.

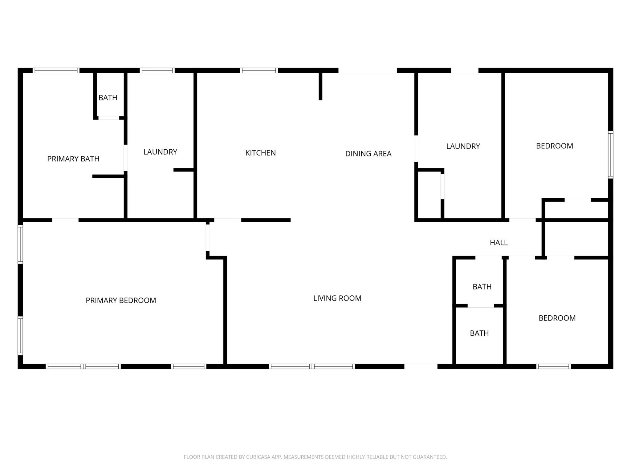
The home itself features an inviting, functional layout perfect for everyday living and entertaining, along with a new roof for added value and peace of mind. The spacious kitchen anchors the home, while three well-sized bedrooms offer flexibility for family, guests, or a home office. New luxury vinyl plank flooring runs throughout the main areas, with new carpet in the primary suite, creating a balance of durability and comfort. A new water heater was just added.

Step outside to a large covered patio overlooking a massive backyard and acreage full of potential. A year-round creek runs through the property, adding both charm and a unique natural feature that sets this land apart.
The land is partially cleared, providing easier access, more usable open space, and added flexibility for future building, recreation, or expansion while still maintaining the beauty of the surrounding woods. Whether you're dreaming of building, expanding, or simply enjoying the peace and privacy, this property delivers.

174 Turner Lane isn't just a home--it's land, lifestyle, and opportunity all in one.

Overview

Property Status
For Sale
Lot Size
8.78 Acres
MLS ID
3166977
Property Type
Manufactured-Mobile
Year Built
2008

Features & Amenities

Total Area
1,820 Sq.Ft.
Neighborhood
Cleveland
Architecture Styles
Other
Water Frontage
Creek
View Description
Water
Stories
1
Water Source
Public
Utilites
Electricity Available, Water Available
Roof
Other
Lot Features
Cleared, Private, Views, Other
Parking
Detached, Gravel
Heat Type
Central, Electric
Air Conditioning
Ceiling Fan(s), Central Air, Electric
Laundry Room
Electric Dryer Hookup, Washer Hookup
Appliances
Refrigerator, Microwave, Dishwasher, Electric Oven
Other Interior Features
Ceiling Fan(s), Open Floorplan
Sewer
Septic Tank
Security Features
Smoke Detector(s)
Elementary School
Park View Elementary School
Middle School
Lake Forest Middle School
Sales Price
$400,000
Real Estate Tax
$595/yr

Downloads

174 Turner Lane, NE

Schedule a Tour

We would love to help you see this beautiful home! As a full-service brokerage, we can help you tour. Please submit an offer, and answer questions about the buying process.

Thank you

for your interest in 174 Turner Lane, NE, Cleveland, TN 37323

174 Turner Lane, NE
Navigate
Cleveland

Explore Cleveland

read more

Mortgage Calculator

Estimate your monthly mortgage payment, including the principal and interest, property taxes, and HOA. Adjust the values to generate a more accurate rate.
$0,000 Your Payment 20 15 65
$0,000 Your Payment

Browse Our

Featured Properties

  • 0 New Bethel Road For Sale

    $27,500,000

    0 New Bethel Road, Dayton, TN 37321

  • 7610 Standifer Gap Road For Sale

    $4,999,000

    7610 Standifer Gap Road, Chattanooga, TN 37421

  • 7521 Shallowford Road Active Under Contract

    $3,300,000

    7521 Shallowford Road, Chattanooga, TN 37421

  • 3591 Kings Road For Sale

    $975,000

    3591 Kings Road, Chattanooga, TN 37416

    • 6 Beds
    • 4 Baths
    • 3,221 Sq.Ft.
  • 18860 River Canyon Road For Sale

    $900,000

    18860 River Canyon Road, Chattanooga, TN 37405

    • 3 Beds
    • 2 Baths
    • 2,438 Sq.Ft.
  • 380 Wedgewood Lane Active Under Contract

    $695,000

    380 Wedgewood Lane, Spring City, TN 37381

    • 5 Beds
    • 3 Baths
    • 3,157 Sq.Ft.
  • 405 Boone Pass For Sale

    $625,000

    405 Boone Pass, Jasper, TN 37347

    • 3 Beds
    • 2 Baths
    • 2,024 Sq.Ft.
  • 1782 Sterling Point, NW Active Under Contract

    $575,000

    1782 Sterling Point, NW, Cleveland, TN 37312

    • 4 Beds
    • 4 Baths
    • 3,899 Sq.Ft.
  • 3717 Jarren Drive For Sale

    $475,000

    3717 Jarren Drive, Chattanooga, TN 37415

    • 3 Beds
    • 3 Baths
    • 1,985 Sq.Ft.
  • 84 Rocky River Road Active Under Contract

    $450,000

    84 Rocky River Road, Ringgold, GA 30736

    • 3 Beds
    • 3 Baths
    • 2,300 Sq.Ft.
  • 5168 Meadowbend Drive, NE For Sale

    $438,000

    5168 Meadowbend Drive, NE, Cleveland, TN 37312

    • 3 Beds
    • 2 Baths
    • 1,819 Sq.Ft.
  • 4707 Jody Lane Pending

    $435,000

    4707 Jody Lane, Chattanooga, TN 37416

    • 4 Beds
    • 3 Baths
    • 1,900 Sq.Ft.
  • 174 Turner Lane, NE For Sale

    $400,000

    174 Turner Lane, NE, Cleveland, TN 37323

    • 3 Beds
    • 2 Baths
    • 1,820 Sq.Ft.
  • 9151 Dallas Hollow Road Active Under Contract

    $398,000

    9151 Dallas Hollow Road, Soddy Daisy, TN 37379

    • 3,400 Sq.Ft.
  • 914 Federal Street For Sale

    $389,000

    914 Federal Street, Chattanooga, TN 37405

    • 2 Beds
    • 1 Bath
    • 1,158 Sq.Ft.
  • 1575 Thompson Creek Road Active Under Contract

    $385,000

    1575 Thompson Creek Road, Morristown, TN 37813

    • 4 Beds
    • 1 Bath
    • 2,165 Sq.Ft.
  • 185 Waters Edge Drive For Sale

    $379,000

    185 Waters Edge Drive, Spring City, TN 37381

    • 3 Beds
    • 2 Baths
    • 2,258 Sq.Ft.
  • 1278 Village Green Drive For Sale

    $375,000

    1278 Village Green Drive, Hixson, TN 37343

    • 2 Beds
    • 3 Baths
    • 2,137 Sq.Ft.
  • 1453 Oldaker View Lane For Sale

    $375,000

    1453 Oldaker View Lane, Hixson, TN 37343

    • 3 Beds
    • 2 Baths
    • 1,758 Sq.Ft.
  • 1453 Oldaker View Lane For Sale

    $375,000

    1453 Oldaker View Lane, Hixson, TN 37343

    • 3 Beds
    • 2 Baths
    • 1,758 Sq.Ft.
  • 736 Belle Vista Avenue Coming Soon

    $350,000

    736 Belle Vista Avenue, Chattanooga, TN 37411

    • 3 Beds
    • 2 Baths
    • 1,300 Sq.Ft.
  • 0 Worley Road, Lot 19 Pending

    $325,000

    0 Worley Road, Lot 19, Soddy Daisy, TN 37379

  • 817 Flynn Street Unit: 304 For Sale

    $309,900

    817 Flynn Street Unit: 304, Chattanooga, TN 37403

    • 2 Beds
    • 2 Baths
    • 1,020 Sq.Ft.
  • 2610 Benton Avenue For Sale

    $300,500

    2610 Benton Avenue, Chattanooga, TN 37406

  • 1414 Continental Drive, 407+409 For Sale

    $300,000

    1414 Continental Drive, 407+409, Chattanooga, TN 37405

    • 2 Beds
    • 2 Baths
    • 1,323 Sq.Ft.
  • 1414 Continental Drive Unit: 407+409 For Sale

    $300,000

    1414 Continental Drive Unit: 407+409, Chattanooga, TN 37405

    • 2 Beds
    • 2 Baths
    • 1,323 Sq.Ft.
  • 4739 Tessie Lane Pending

    $300,000

    4739 Tessie Lane, Hixson, TN 37343

    • 1,844 Sq.Ft.
  • 0 Big Soddy Drive For Sale

    $299,000

    0 Big Soddy Drive, Soddy Daisy, TN 37379

  • 0 Big Soddy Drive, Lot 12 For Sale

    $299,000

    0 Big Soddy Drive, Lot 12, Soddy Daisy, TN 37379

  • 704 Annadell Road Pending

    $295,000

    704 Annadell Road, Lancing, TN 37770

    • 4 Beds
    • 1 Bath
    • 1,562 Sq.Ft.
  • 7641 Boriss Drive For Sale

    $289,000

    7641 Boriss Drive, Chattanooga, TN 37416

    • 4 Beds
    • 3 Baths
    • 1,827 Sq.Ft.
  • 0 Worley Road, Lot 14 Pending

    $285,000

    0 Worley Road, Lot 14, Soddy Daisy, TN 37379

  • 1619 E 12th Street, 109 For Sale

    $285,000

    1619 E 12th Street, 109, Chattanooga, TN 37404

    • 2 Beds
    • 2 Baths
    • 985 Sq.Ft.
  • 1619 E 12th Street Unit: 109 For Sale

    $285,000

    1619 E 12th Street Unit: 109, Chattanooga, TN 37404

    • 2 Beds
    • 2 Baths
    • 985 Sq.Ft.
  • 0 Worley Road, Lot 27 Pending

    $280,000

    0 Worley Road, Lot 27, Soddy Daisy, TN 37379

  • 0 Worley Road For Sale

    $275,000

    0 Worley Road, Soddy Daisy, TN 37379

  • 0 Worley Road, Lot 15 Pending

    $275,000

    0 Worley Road, Lot 15, Soddy Daisy, TN 37379

  • 0 Worley Road, Lot 21 Pending

    $275,000

    0 Worley Road, Lot 21, Soddy Daisy, TN 37379

  • 0 Worley Road, Lot 43 For Sale

    $275,000

    0 Worley Road, Lot 43, Soddy Daisy, TN 37379

  • 3103 Andrew Jackson Lane, SE Pending

    $275,000

    3103 Andrew Jackson Lane, SE, Cleveland, TN 37323

    • 3 Beds
    • 2 Baths
    • 1,586 Sq.Ft.
  • 8 Clearview Avenue Active Under Contract

    $269,000

    8 Clearview Avenue, Chattanooga, TN 37404

    • 2 Beds
    • 1 Bath
    • 1,621 Sq.Ft.
  • 0 Worley Road, Lot 20 Pending

    $265,000

    0 Worley Road, Lot 20, Soddy Daisy, TN 37379

  • 2404 Awtry Street Active Under Contract

    $265,000

    2404 Awtry Street, Chattanooga, TN 37406

    • 3 Beds
    • 2 Baths
    • 1,248 Sq.Ft.
  • 527 Winterview Lane For Sale

    $250,000

    527 Winterview Lane, Chattanooga, TN 37409

    • 2 Beds
    • 3 Baths
    • 1,260 Sq.Ft.
  • 173 Hidden Meadow Lane Active Under Contract

    $239,000

    173 Hidden Meadow Lane, Dunlap, TN 37327

    • 3 Beds
    • 2 Baths
    • 1,260 Sq.Ft.
  • 1322 Pennsylvania Avenue For Sale

    $234,900

    1322 Pennsylvania Avenue, Etowah, TN 37331

    • 3 Beds
    • 2 Baths
    • 1,416 Sq.Ft.
  • 0 Three Gorges Road For Sale

    $225,000

    0 Three Gorges Road, Soddy Daisy, TN 37379

  • 0 Three Gorges Road, Lot 3 For Sale

    $225,000

    0 Three Gorges Road, Lot 3, Soddy Daisy, TN 37379

  • 1712 Carson Avenue For Sale

    $219,000

    1712 Carson Avenue, Chattanooga, TN 37404

    • 3 Beds
    • 2 Baths
    • 1,150 Sq.Ft.
  • 2385 Three Gorges Road Active Under Contract

    $210,000

    2385 Three Gorges Road, Soddy Daisy, TN 37379

View All

Follow Us On Instagram