Search

Leave a Message

By providing your contact information to Grace Frank Group, your personal information will be processed in accordance with Grace Frank Group's Privacy Policy. By checking the box(es) below, you consent to receive communications regarding your real estate inquiries and related marketing and promotional updates in the manner selected by you. For SMS text messages, message frequency varies. Message and data rates may apply. You may opt out of receiving further communications from Grace Frank Group at any time. To opt out of receiving SMS text messages, reply STOP to unsubscribe.

Thank you for your message. We will be in touch with you shortly.

Home Search

Property Description

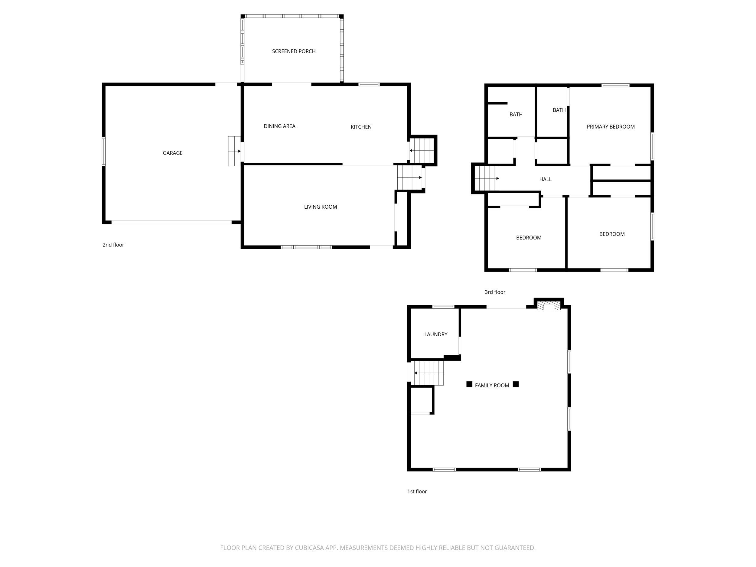
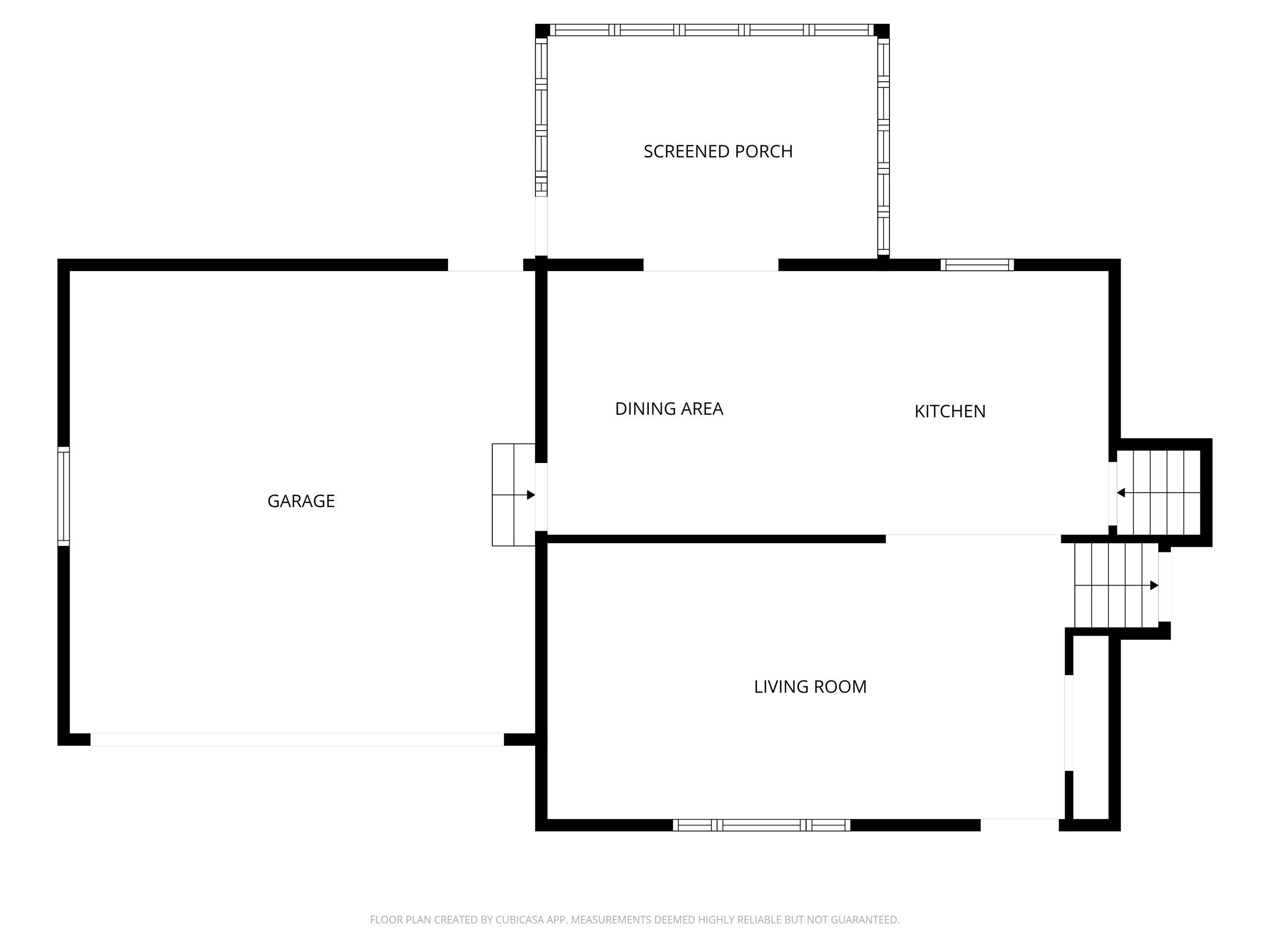
Welcome to 5745 Antonio Lane where you would discover the perfect blend of convenience and comfort in this ideally located Hixson home off Hwy 153. It is nestled on a spacious lot in a quiet, sought-after neighborhood. This home is a well-maintained, beautiful tri-level residence offering 3 bedrooms and 2 full bathrooms, designed to accommodate both everyday living and effortless entertaining.
Step inside to a bright and generous living area that flows seamlessly into an expansive eat-in kitchen with an island for gatherings. Whether you're preparing family meals or hosting friends, this space is sure to be the heart of the home.
The finished basement provides exceptional versatility--ideal for a cozy den, media room, home gym, or play area. With plenty of room to tailor the space to your needs, it adds incredible value and livability.
Outside, the large lot offers endless possibilities for outdoor enjoyment, gardening, or future enhancements. A convenient 2-car garage provides additional storage and ease for daily routines.
If you're searching for peaceful, relaxed living while staying close to everything Hixson has to offer--shopping, dining, and parks--this property is the perfect match to feel at home the moment you arrive.
Enjoy your morning coffee on the back patio as the sun rises, or unwind in the private backyard, perfect for reading, gardening, or simply enjoying the outdoors. Recent updates - windows and HVAC - ensure years of low-maintenance living, allowing you to spend more time enjoying the home and neighborhood.

Please call for your personal tour today!

Overview

Property Status
For Sale
Lot Size
0.32 Acres
MLS ID
1528000
Property Type
Residential
Year Built
1965

Features & Amenities

Total Area
2,050 Sq.Ft.
Neighborhood
Hixson
Stories
3
Garage Spaces
2.0
Water Source
Public
Utilites
Cable Available, Electricity Connected, Natural Gas Connected, Phone Available, Sewer Connected, Water Connected
Roof
Shingle
Parking
Garage, Garage Door Opener, Garage Faces Front, Off Street
Heat Type
Central, Electric
Air Conditioning
Ceiling Fan(s), Central Air, Electric
Laundry Room
Electric Dryer Hookup, In Basement, Laundry Room, Lower Level, Washer Hookup
Fireplace
Den, Gas Log, Gas Starter, Living Room, Wood Burning
Appliances
Water Heater, Stainless Steel Appliance(s), Oven, Microwave, ENERGY STAR Qualified Appliances, Dishwasher, Built-In Refrigerator, Built-In Range, Built-In Gas Range, Built-In Gas Oven
Other Interior Features
Ceiling Fan(s), Crown Molding, Eat-in Kitchen, En Suite, Granite Counters, Kitchen Island, Separate Shower, Smart Camera(s)/Recording, Smart Light(s), Tub/shower Combo
Sewer
Public Sewer
Substructure
Concrete Perimeter
Security Features
Fire Alarm, Security Lights, Security System Owned, Smoke Detector(s)
Other Exterior Features
Lighting, Private Entrance, Private Yard, Rain Gutters, Smart Camera(s)/Recording, Smart Light(s)
Elementary School
Hixson Elementary
Middle School
Hixson Middle
High School
Hixson High
Sales Price
$309,000
Real Estate Tax
$2,320/yr

Downloads

5745 Antonio Lane

Schedule a Tour

We would love to help you see this beautiful home! As a full-service brokerage, we can help you tour. Please submit an offer, and answer questions about the buying process.

Thank you

for your interest in 5745 Antonio Lane, Hixson, TN 37343

5745 Antonio Lane
Navigate
Hixson

Explore Hixson

read more

Mortgage Calculator

Estimate your monthly mortgage payment, including the principal and interest, property taxes, and HOA. Adjust the values to generate a more accurate rate.
$0,000 Your Payment 20 15 65
$0,000 Your Payment

Browse Our

Featured Properties

  • 0 New Bethel Road For Sale

    $27,500,000

    0 New Bethel Road, Dayton, TN 37321

  • 7610 Standifer Gap Road For Sale

    $4,999,000

    7610 Standifer Gap Road, Chattanooga, TN 37421

  • 7610 Standifer Gap Road For Sale

    $4,999,000

    7610 Standifer Gap Road, Chattanooga, TN 37421

  • 6423 Ac Worley Road For Sale

    $1,600,000

    6423 Ac Worley Road, Soddy Daisy, TN 37379

  • 3591 Kings Road For Sale

    $975,000

    3591 Kings Road, Chattanooga, TN 37416

    • 6 Beds
    • 4 Baths
    • 3,221 Sq.Ft.
  • 3591 Kings Road For Sale

    $975,000

    3591 Kings Road, Chattanooga, TN 37416

    • 6 Beds
    • 4 Baths
    • 3,221 Sq.Ft.
  • 30 Ac Worley Road For Sale

    $800,000

    30 Ac Worley Road, Soddy Daisy, TN 37379

  • 380 Wedgewood Lane Active Under Contract

    $695,000

    380 Wedgewood Lane, Spring City, TN 37381

    • 5 Beds
    • 3 Baths
    • 3,157 Sq.Ft.
  • 210 Hiwassee Drive NE For Sale

    $550,000

    210 Hiwassee Drive NE, Charleston, TN 37310

    • 3 Beds
    • 3 Baths
    • 2,670 Sq.Ft.
  • 210 Hiwassee Drive, NE For Sale

    $550,000

    210 Hiwassee Drive, NE, Charleston, TN 37310

    • 3 Beds
    • 3 Baths
    • 2,670 Sq.Ft.
  • 9151 Dallas Hollow Road For Sale

    $475,000

    9151 Dallas Hollow Road, Soddy Daisy, TN 37379

    • 3,400 Sq.Ft.
  • 9151 Dallas Hollow Road For Sale

    $475,000

    9151 Dallas Hollow Road, Soddy Daisy, TN 37379

    • 3,400 Sq.Ft.
  • 7618 Asherton Lane For Sale

    $450,000

    7618 Asherton Lane, Chattanooga, TN 37421

    • 5 Beds
    • 3 Baths
    • 2,687 Sq.Ft.
  • 7618 Asherton Lane For Sale

    $450,000

    7618 Asherton Lane, Chattanooga, TN 37421

    • 5 Beds
    • 3 Baths
    • 2,687 Sq.Ft.
  • 4707 Jody Lane Pending

    $435,000

    4707 Jody Lane, Chattanooga, TN 37416

    • 4 Beds
    • 3 Baths
    • 1,900 Sq.Ft.
  • 11003 Worley Road For Sale

    $425,000

    11003 Worley Road, Soddy Daisy, TN 37379

  • 11003 Worley Road For Sale

    $425,000

    11003 Worley Road, Soddy Daisy, TN 37379

  • 189 Sierra Drive For Sale

    $425,000

    189 Sierra Drive, Dayton, TN 37321

    • 5 Beds
    • 3 Baths
    • 1,950 Sq.Ft.
  • 189 Sierra Drive For Sale

    $425,000

    189 Sierra Drive, Dayton, TN 37321

    • 5 Beds
    • 3 Baths
    • 1,950 Sq.Ft.
  • 4094 University Drive Active Under Contract

    $425,000

    4094 University Drive, Ooltewah, TN 37363

    • 5 Beds
    • 3 Baths
    • 2,653 Sq.Ft.
  • 4094 University Drive, Ooltewah Pending

    $425,000

    4094 University Drive, Ooltewah, TN 37363

    • 5 Beds
    • 3 Baths
    • 2,653 Sq.Ft.
  • 1575 Thompson Creek Road Active Under Contract

    $385,000

    1575 Thompson Creek Road, Morristown, TN 37813

    • 4 Beds
    • 1 Bath
    • 2,165 Sq.Ft.
  • 1575 Thompson Creek Road, Morristown Pending

    $385,000

    1575 Thompson Creek Road, Morristown, TN 37813

    • 4 Beds
    • 1 Bath
    • 2,165 Sq.Ft.
  • 1713 Timesville Road Pending

    $355,000

    1713 Timesville Road, Signal Mountain, TN 37377

    • 3 Beds
    • 2 Baths
    • 1,684 Sq.Ft.
  • 0 Worley Road, Lot 19 Pending

    $325,000

    0 Worley Road, Lot 19, Soddy Daisy, TN 37379

  • 5745 Antonio Lane For Sale

    $309,000

    5745 Antonio Lane, Hixson, TN 37343

    • 3 Beds
    • 2 Baths
    • 2,050 Sq.Ft.
  • 5745 Antonio Lane For Sale

    $309,000

    5745 Antonio Lane, Hixson, TN 37343

    • 3 Beds
    • 2 Baths
    • 2,050 Sq.Ft.
  • 1414 Continental Drive, 407+409 For Sale

    $300,000

    1414 Continental Drive, 407+409, Chattanooga, TN 37405

    • 2 Beds
    • 2 Baths
    • 1,323 Sq.Ft.
  • 1414 Continental Drive Unit: 407+409 For Sale

    $300,000

    1414 Continental Drive Unit: 407+409, Chattanooga, TN 37405

    • 2 Beds
    • 2 Baths
    • 1,323 Sq.Ft.
  • 4739 Tessie Lane Pending

    $300,000

    4739 Tessie Lane, Hixson, TN 37343

    • 1,844 Sq.Ft.
  • 4739 Tessie Lane Pending

    $300,000

    4739 Tessie Lane, Hixson, TN 37343

    • 1,844 Sq.Ft.
  • 7641 Boriss Drive For Sale

    $300,000

    7641 Boriss Drive, Chattanooga, TN 37416

    • 4 Beds
    • 3 Baths
    • 1,827 Sq.Ft.
  • 7641 Boriss Drive For Sale

    $300,000

    7641 Boriss Drive, Chattanooga, TN 37416

    • 4 Beds
    • 3 Baths
    • 1,827 Sq.Ft.
  • 0 Big Soddy Drive For Sale

    $299,000

    0 Big Soddy Drive, Soddy Daisy, TN 37379

  • 0 Big Soddy Drive, Lot 12 For Sale

    $299,000

    0 Big Soddy Drive, Lot 12, Soddy Daisy, TN 37379

  • 704 Annadell Road For Sale

    $295,000

    704 Annadell Road, Lancing, TN 37770

    • 4 Beds
    • 1 Bath
    • 1,562 Sq.Ft.
  • 0 Worley Road Active Under Contract

    $285,000

    0 Worley Road, Soddy Daisy, TN 37379

  • 0 Worley Road, Lot 14 Pending

    $285,000

    0 Worley Road, Lot 14, Soddy Daisy, TN 37379

  • 0 Worley Road Active Under Contract

    $275,000

    0 Worley Road, Soddy Daisy, TN 37379

  • 0 Worley Road Active Under Contract

    $275,000

    0 Worley Road, Soddy Daisy, TN 37379

  • 0 Worley Road, Lot 15 Pending

    $275,000

    0 Worley Road, Lot 15, Soddy Daisy, TN 37379

  • 0 Worley Road, Lot 21 Pending

    $275,000

    0 Worley Road, Lot 21, Soddy Daisy, TN 37379

  • 0 Worley Road, Lot 43 Pending

    $275,000

    0 Worley Road, Lot 43, Soddy Daisy, TN 37379

  • 2404 Awtry Street For Sale

    $275,000

    2404 Awtry Street, Chattanooga, TN 37406

    • 3 Beds
    • 2 Baths
    • 1,248 Sq.Ft.
  • 2404 Awtry Street, Chattanooga For Sale

    $275,000

    2404 Awtry Street, Chattanooga, TN 37406

    • 3 Beds
    • 2 Baths
    • 1,248 Sq.Ft.
  • 3103 Andrew Jackson Lane SE Pending

    $275,000

    3103 Andrew Jackson Lane SE, Cleveland, TN 37323

    • 3 Beds
    • 2 Baths
    • 1,586 Sq.Ft.
  • 3103 Andrew Jackson Lane, SE Active Under Contract

    $275,000

    3103 Andrew Jackson Lane, SE, Cleveland, TN 37323

    • 3 Beds
    • 2 Baths
    • 1,586 Sq.Ft.
  • 527 Winterview Lane For Sale

    $275,000

    527 Winterview Lane, Chattanooga, TN 37409

    • 2 Beds
    • 3 Baths
    • 1,260 Sq.Ft.
  • 8 Clearview Avenue For Sale

    $275,000

    8 Clearview Avenue, Chattanooga, TN 37404

    • 2 Beds
    • 1 Bath
    • 1,621 Sq.Ft.
  • 8 Clearview Avenue For Sale

    $275,000

    8 Clearview Avenue, Chattanooga, TN 37404

    • 2 Beds
    • 1 Bath
    • 1,621 Sq.Ft.
View All

Follow Us On Instagram